Solar Salt Production Site Winch Tower & Bridge
Solar Salt Production Site Winch Tower & Bridge
Particular attention had to be paid to the extremely corrosive environment the winch tower would sit in – this meant that the majority of conventional materials would be eliminated for selection.
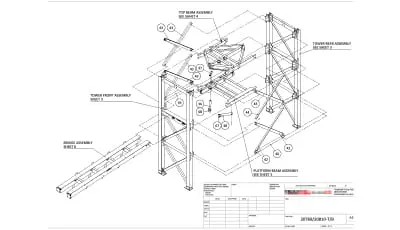
Our client’s engineering team worked in close conjunction with our FRP design and development personnel throughout the whole project to build a lightweight, corrosion resistant and cyclone rated structure that was capable of supporting a heavy duty winch with a S.W.L. of 5 tonnes. The resulting construction consisted of all members made of fibreglass, joined together using 316 grade stainless steel bracketry.
As it was necessary to have personnel access on the winch, a bridge section was developed to span the 7 metres between a bank of earth and the tower. GratEX® was used to make certain that all personnel accessing the tower would enjoy safe and secure footing in conjunction with RailE® , Treadwell’s FRP hand railing system.
The structure was fully trial assembled and then partly dismantled and packed into modules to be delivered on time in full.
Project Information
Project Category: ArchitEX™ structure
Scope of Work: Winch tower at solar salt production facility
Treadwell Products :
- ArchitEX™ FRP Structural Profiles
- EX-Series® GratEX® FRP Square Mesh Grating
- EX-Seires® RailEX® ROUND FRP Handrail


Treadwell Solution
- ArchitEX™ FRP columns, beams and other supporting profiles were specified as the skeleton of the structure. GratEX® FRP grating and RailEX® FRP handrail were supplied to provide safe access. Specially formulated resin was categorically determined to withstand the corrosion.
- The ArchitEX™ profiles were tested to be cyclone rated.
- Being lightweight and easy to install, FRP is very manageable during construction.
- Given the nature of FRP, any system utilising it is virtually maintenance free.
- FRP is high in strength. Based on the resin formula and engineered design, the structure was capable to support the heavy duty winch.
AU
NZ
UK
